Quartiere

Alle MEDI-LEARN-Quartiere (Haus Ambach, Alte Brauerei) befinden sich in unmittelbarer Fußnähe zur Unibibliothek, zur Oberstadt und zum Bahnhof.
Die Alte Brauerei befindet sich im Wehrdaer Weg 20, das Haus Ambach im Wehrdaer Weg 26.
Sämtliche Zimmer sind modern möbliert und mit einem Internetzugang via W-LAN ausgestattet. Für jede Etage stehen komplett eingerichtete Küchen und Bäder zur Verfügung. Waschmaschinen und Trockner sind vorhanden.

Kartenansicht




AB_Lageplan_1_OG
Lageplan der Zimmer AB 12-15
AB 12
11,5 qm, Etagen- DU/WC, Waschbecken
AB 13
14,5 qm, Etagen-Du/WC, Waschbecken
AB 14
14 qm, Etagen- DU/WC, Waschbecken
AB 16
12 qm, Etagen-Du/WC, Waschbecken, Bett 140x200
AB 17
8 qm, Etagen-Du/WC, Bett 140x200
AB 18
8 qm, Etagen-Du/WC, Bett 90x200
AB 15
12 qm, Etagen-Du/WC, Waschbecken, Bett 140x200
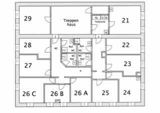
AB_Lageplan_2_OG
Lageplan der Zimmer AB 21-29
AB 21
17,5 qm, Etagen-Du/WC,Waschbecken, Bett 140x200, Balkon
AB 22
11,5 qm,Etagen- DU/WC, Waschbecken
AB 23
14,5 qm, Etagen-Du/WC,Waschbecken
AB 24
14 qm,Etagen- DU/WC, Waschbecken
AB 25
12 qm, Etagen-Du/WC,Waschbecken, Bett 140x200
AB 26A
12 qm, Etagen-Du/WC,Waschbecken
AB 26B
10 qm, Etagen-Du/WC,Waschbecken
AB 26C
11,5 qm, Etagen-Du/WC, Waschbecken, Bett 140x200
AB 27
13 qm, Etagen-Du/WC,Waschbecken, Bett 140x200
AB 28
11 qm, Etagen-Du/WC,Waschbecken
AB 29
18 qm, Etagen-Du/WC,Waschbecken, Bett 140x200
AB_Lageplan_3_OG
Lageplan der Zimmer AB 31-38
AB 31
9 qm,Etagen- DU/WC, Waschbecken, Bett 140x200
AB 32
13 qm,Etagen- DU/WC, Waschbecken, Bett 140x200
AB 33
18 qm,Etagen- DU/WC, Waschbecken, Bett 140x200
AB 35
13 qm,Etagen- DU/WC, Waschbecken, Bett 140x200
AB 34
13 qm,Etagen- DU/WC, Waschbecken, Bett 140x200
AB 36
8 qm, Etagen-Du/WC, Bett 140x200
AB 37
15 qm,Etagen- DU/WC, Bett 140x200, Waschbecken
AB 38
13 qm,Etagen- DU/WC, Waschbecken, Bett 140x200
AB 39
14 qm,Etagen- DU/WC, Waschbecken, Bett 140x200
AB 4 Kueche
Küche im 3, OG
ab_essen_21_29
Essen
ab_kueche_21_29
Küche für Zi 21-29
ab_kueche_31_35
Küche für Zi 31-35
ab_treppenhaus
Treppenhaus
AM_Lageplan_EG
Lageplan der Zimmer AM 11-16
AM 11
18 qm, Hochbett, Waschbecken, Straße
AM 12
11 qm, Hochbett, Waschbecken, Straße
AM 13
10 qm, Hochbett, Waschbecken, Straße
AM 14
12 qm, Hochbett, Waschbecken, Straße
AM 15
13 qm, Hochbett, Waschbecken, Hof
AM 16
13 qm, Hochbett, Waschbecken, Hof
AM_Lageplan_1_OG
Lageplan der Zimmer AM 21-26
AM 21
18 qm, Hochbett, Waschbecken, Straße
AM 22
11 qm, Hochbett, Waschbecken, Straße
AM 23
10 qm,Etagen- DU/WC, Waschbecken, Hochbett, Straße
AM 24
12 qm, Hochbett, Waschbecken, Hof
AM 25
17 qm, Hochbett, Waschbecken, Hof
AM 26
13 qm, Hochbett, Waschbecken, Hof
AM_Lageplan_2_OG
Lageplan der Zimmer AM 31-25
AM 31
14 qm, Waschbecken, Straße
AM 32
10 qm, Waschbecken, Straße
AM 33
19 qm, Waschbecken, Straße
AM 34
13 qm, Waschbecken, Hof
AM 35
8 qm, Waschbecken, Hof
D _Lageplan_EG
Lageplan Zimmer D 1 - 5
D 1
16 qm, Etagen-Du/WC, Bett 140x200
D 2
17 qm, Etagen-Du/WC, Bett 140x200
D 3
17 qm, Etagen-Du/WC, Bett 140x200
D 4
18 qm, Etagen-Du/WC, Bett 140x200
D 11
mit D12 abgetrenntes Appartement mit eigener DU/WC und Kleinküche
D 12
mit D11 abgetrenntes Appartement mit eigener DU/WC und Kleinküche
D 13
14 qm Waschbecken, ruhige Lage, Bett 140 cm
D 14
13 qm Waschbecken, ruhige Lage, Bett 140 cm
D 15
13 qm Waschbecken, ruhige Lage, Bett 140 cm
D 16
11 qm Waschbecken, ruhige Lage, Bett 140 cm
D 17
16,5 qm Waschbecken, ruhige Lage, Bett 140 cm
D 18
10 qm, eingener Zugang, ruhige Lage, Bett 140 cm
D 99
10 qm, eingener Zugang, ruhige Lage, Bett 140 cm
D _Lageplan_OG
Lageplan Zimmer D 11- 18
up